引言
1手术区1小间
每1个小间设置1个手术区域
> 用气密性围护结构来有效维持无菌环境控制
≥2手术区1大间
1个大空间设置两个及以上手术区域
> 结构上开放的大空间,每个手术区域采用能有效分隔交叉污染的超净送风装置;
> 要求同时实施交汇融合医疗功能的同类手术
通仓手术室的发展历程

利物浦的布罗德格林医院骨外科通仓手术室。
> 开放式的4个手术区域,每个手术台上方设置超净送风装置,送风装置四周用玻璃围挡,并首次采用桥架。


可滑动的透明屏障(防碎骨飞溅与血流喷射)

> 英国莱廷顿医院通仓手术室。
> 4台手术区之间设置固定的无框玻璃隔板;四周玻璃围挡无桥架,但围挡高度没变。
> 医气与电源接口布置在控制隔墙上;控制隔墙背后形成了一条洁净通道。


运动医院的双手术区手术室
> 德国普福尔茨海姆的运动医院的手术部有2间双手术区的通仓手术室--现代化创伤手术室。
> 该手术室设超净送风装置,四周是透明的低围挡,无桥架。
> 前面设置麻醉诱导间、刷手间和污物间,后面是洁净走廊,供给无菌物品。

手术室前麻醉诱导

运动医院的双手术区手术室
> 德国汉堡海洛斯医院是欧洲最著名的关节置换、体育骨科和脊柱外科专家诊所之一,德国的最大手术室。
> 手术部中有一间 16㎡大手术室,内设4个手术。
> 送风装置配有高围挡的桥架,有利于维持低湍流度的送风气流,及保证手术区域内的高度洁净。
> 各种医用气体、电源等接口布置在桥架四周,医用吊架可沿桥架四周移动,为麻醉、外科提供一个平台。

海洛斯医院通仓手术室手术中

在器械桌侧设置透明塑料挡板
> 手术部布局思路是沿用德国传统 “自带辅房手术室”模式。手术室前面带三个前室,分别为病患出入间、医护人员出入间与污物间,后面是无菌物品供给走廊,强调无菌物品与其他人流与物流的分流。
> 采用厢式密闭车,洁净物品和污染物品均在密闭车内输送,使得整个物流控制更加简便有效。
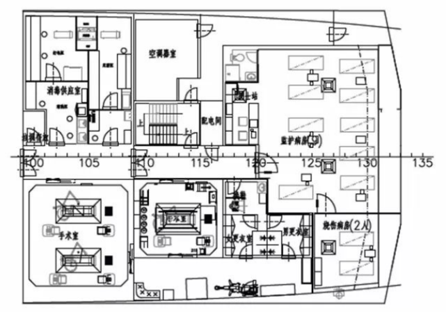
海洛斯医院手术部布局

洁净手术区平面图
> 我国设计的平战两用船舶,因船舱室的低层高、面积小、人流和物流密度大,满足洁净手术室多功能、高利用率要求。
> 手术部中有一间 33.5 ㎡( 5.77 m * 5.86 m * 2.6 m )的II级大手术室,内设2个手术区,可同时安排2台手术。

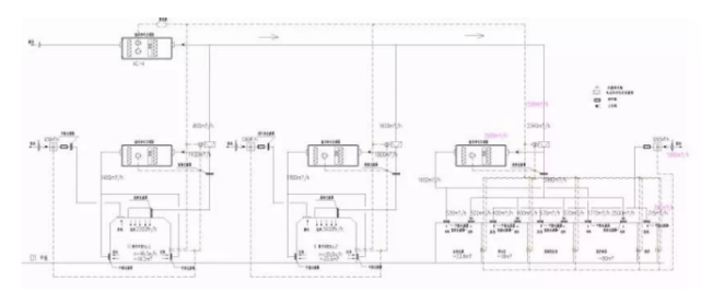
洁净手术区净化空调系统
通仓手术室的性能研究
> 两个送风口分别布置在对半分以后的房间天花板正中心。
> 排风口布置在病人头侧的顶部。
> 回风口设置在手术台长边双侧墙的下部,即在两面相对的墙上分别设置一个回风口,回风口下边距地0.15m,回风口与两扇手术室门同侧。

通仓手术室平面图
按照《医院洁净手术部建筑技术规范》GB50333-2014
> 第4.0.1条要求:Ⅱ级洁净手术室最小换气次数为24次/h,最小新风量为15~20 m³/h·m²,且不小于800 m³/h;
> 第4.0.2条要求:相互连通的不同洁净度级别的洁净用房之间,洁净度高的用房应对洁净度低的用房保持相对正压。最小静压差应大于或等于5Pa,最大静压差应小于20Pa,不应因压差而产生哨音或影响开门;
> 第8.1.13条要求:每间正压手术室的排风量不宜低于250 m³/h;
考虑大手术室第1种方案(B-1),送风取2500 m³/h,新风1600 m³/h,回风900 m³/h,排风1300 m³/h,正压渗透风量计300 m³/h。
> 规范第4.0.2条条文说明要求:Ⅱ级手术室还要考虑送风面风速不宜小于0.13m/s。
> 考虑大手术室第2种方案(B-2),送风量取3400 m³/h,新风1600 m³/h,回风1800 m³/h,排风1300 m³/h,正压渗透风量计300 m³/h。